Our Vessel Modular Homes are designed to meet the housing needs of local authorities, housing associations, and other organizations looking for quick, cost-effective, and flexible residential solutions. These homes offer numerous advantages for both urban and rural developments, including the ability to be installed on previously unusable land, such as contaminated sites.
Our modular homes provide an excellent, turnkey solution for addressing the UK housing shortage, ensuring that communities receive sustainable, high-quality accommodation in record time.
Key Features of Vessel Modular Homes
Installed on Contaminated Land: Our modular units can be placed on land that has been previously deemed unsuitable for traditional buildings, opening up new possibilities for development.
Collaboration with Local Authorities: We work closely with councils and local authorities to deliver housing solutions that meet their unique requirements.
Address Housing Shortage: Our units provide immediate relief for areas suffering from housing deficits.
Turnkey Operation: We offer a comprehensive service from planning to installation, ensuring the process is smooth and hassle-free.
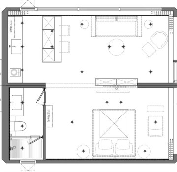
Up to 15M Long: Our largest models can reach up to 15 meters in length, offering spacious living quarters.
1-2 Bedroom Options: Choose from our flexible designs that include both 1-bedroom and 2-bedroom configurations.
Stackable Design: Our modular homes can be stacked on top of one another, making them ideal for maximizing limited space or urban developments.
Alternate Uses for Vessel Modular Units
In addition to providing residential solutions, our modular homes are highly adaptable for other purposes. These structures can be easily customized for:
Training Rooms: Ideal for vocational and educational training purposes.
Classrooms: Our units can serve as temporary or permanent classrooms for schools or educational centers.
Workshops: Flexible spaces that can be used as workshops for various industries.
No matter the application, our modular units offer versatility and durability, ensuring they meet your operational needs.
If you’re interested in learning more about our modular homes or would like to discuss a potential project, please fill out the form below and one of our team members will be in touch shortly.
Our modular homes in different settings, both for residential and alternate uses.
At Vessel, we are committed to delivering high-quality, flexible housing solutions that meet the growing demands of the housing market. Our modular homes provide a unique opportunity for councils, local authorities, and housing associations to quickly address housing shortages and other accommodation needs.