Description
Product External Composition
1. Galvanized Steel Structure
2. Fluorocarbon Sprayed Aluminum Panel
3. Insulation and Waterproof Construction System
4. Hollow Low-E Glass Doors and Windows Insulated Laminated Glass (Skylight)
5. Stainless Steel Entry Door
6. VESSEL LOGO
7. Viewing Balcony
Control System
1. Insert Card for Power
2. Multi-Scenario Mode Switch
3. Lighting Control Switch
4. Access Control System
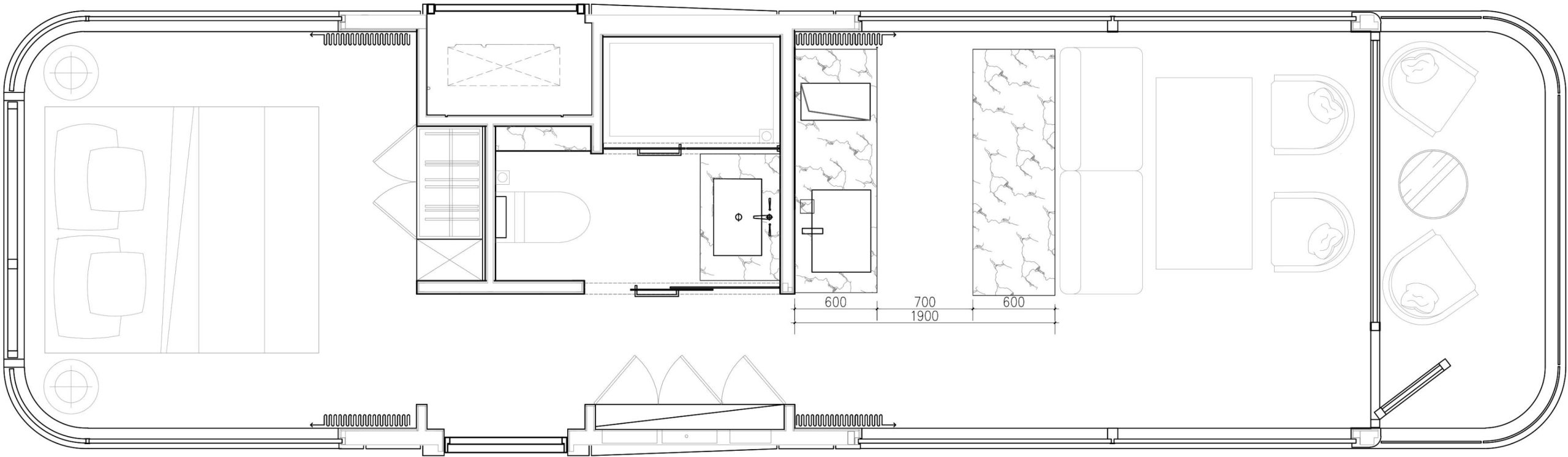
Product Interior Composition
1. Integrated Ceiling/Wall Composition Module
2. Eco-Friendly Floor
3. Opaque Glass Door to Bathroom
4. Bathroom Ceramic Tile Floor
5. Bathroom Sink/Basin/Vanity Mirror
6. Closestool/Shower Facilities
7. Lighting System
8. Water Supply and Sewage Facilities/Electric System
9. Blackout Curtains with Standard Color
10. 2 hp Heating and Cooling Air Conditioner
11. 80 Liter Electric Water Heater
12. Integrated Hood, Induction Cooker, Electric Oven
Product Accessories
1. Foot Support of Product
2. Lifting Ring
3. Fixtures for Transportation
4. Product Packaging
Customized Furniture
1. Customized Locker
2. Wall-Mounted Wardrobe
3. Kitchen Worktop
4. Kitchen lsland
More Advanced Thermal Insulation
1. *Water Supply Pipe Insulation System
2. *Thickened Thermal Insulation Layer
3. *Bath Heater(Including Lighting, Ventilation, Heating)
4. *Electric Floor Heating

















Reviews
There are no reviews yet.